Tren school

ASHRAE design competition

Check out the full report

Skills Advanced: Revit, HVAC Design, Heat transfer calculations

Objective: The 2023-2024 ASHRAE High School Design Competition focuses on the design of a school addition located in Sao Paolo, Brazil. Participants in this competition are tasked to determine summer cooling requirements for the different spaces in the building, select the HVAC equipment to be installed, and model the building and systems utilizing 3D Design Software.

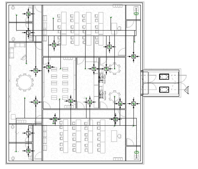
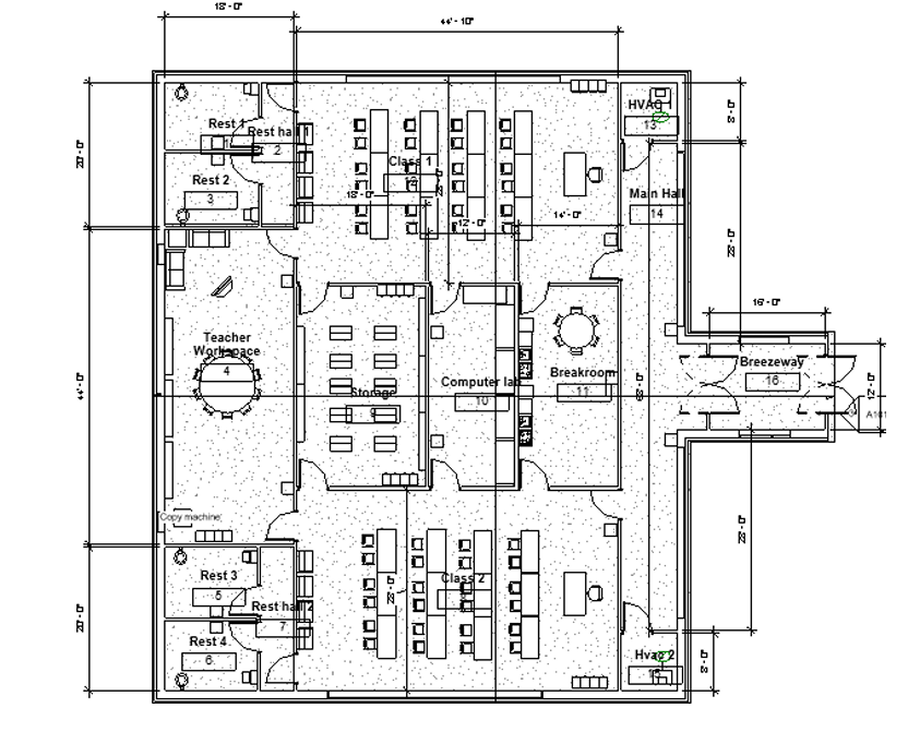
In this project, I utilized Revit to design the 6140 square foot school addition. The addition included 2 classrooms, a main hallway, 4 bathrooms, a teacher workroom, a breakroom, a storage room, and a computer lab. The addition uses a drop ceiling with a minimum of 4 feet to the roof to allow ductwork to be safely installed. The addition connects to the main building on the eastern side, so the roof slants toward the west to encourage water runoff away from the main building.

The HVAC calculations for solar heat transfer and heat gain used to determine the selected air-conditioning unit are available here. The selected units allow the addition to remain at a comfortable 70 degrees F during 90-degree days with some margin for extremities.

The plans for the 2 HVAC units covering the northern and southern halves of the building are symmetrical. Based on my calculations for heat gain and heat transfer, we selected 2 C-060 units appropriate for their 2000 CFM airflow and 5-ton capacity. To accommodate the airflow, the designed ductwork was 18x18 inches, which fits within the designated minimum 4ft of ceiling height. The rooms containing the HVAC units are 8x8x10 ft, which fits the 6x4x3 unit size inside. The ducts are then able to run up into the ceiling and disperse throughout their section of the building. Since the rooms are in the corners of the building, they can vent directly outside the school on the eastern wall. The units were also placed such that they would minimize noise in the classrooms.

Check out the full report
Previous
Previous

CRoG

Next
Next

Luigi Picture Poker